LDKリフォームプラン 茨城県下妻市・古河市でLDKリフォームをご検討中の方必見!

LDKリフォームプラン内容

Before LDKリフォームビフォー画像
after LDKリフォームアフター画像
  • 間取変更
    間取変更
    自由設計
  • キッチン
    キッチン
    最新型
  • 浴室
    浴室
    そのまま
  • 洗面
    洗面
    そのまま
  • トイレ
    トイレ
    そのまま
  • 建具
    建具
    LDK部分
  • 床材
    床材
    LDK部分
  • クロス
    クロス
    LDK張替
  • 内装
    内装
    LDK部分
  • コンセント
    コンセント
    LDK部分
  • スイッチ
    スイッチ
    LDK部分
  • 玄関
    玄関
    そのまま
  • サッシ
    サッシ
    そのまま
  • 屋根・外壁
    屋根・外壁
    そのまま
工事
価格
168 万円〜
工事
面積
16

LDKリフォーム
よくあるきっかけ・動機

  • 60代夫婦 60代夫婦
    • 家にいる時間が増え、リビングを快適にしたい
    • 子供が巣立って夫婦2人暮らしになった
    • 散らかったLDKをきれいにしたい
    • 台所が孤立していて料理が楽しくない
  • 40代夫婦 40代夫婦
    • 散らかったLDKをきれいにしたい
    • 子供が大きくなり家族みんなでLDKに集まる機会が少なくなった
    • キッチンが古くてなかなかきれいにならない
    • 台所が孤立していて料理が楽しくない

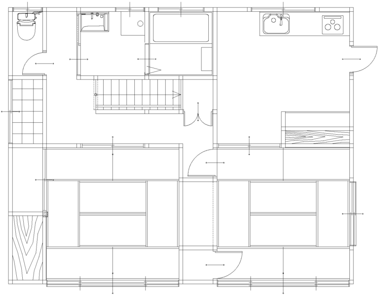
LDKリフォーム 間取り
ビフォーアフターイメージ

Before LDKリフォーム ビフォーイメージ
After LDKリフォーム アフターイメージ
  • 住宅設備4点交換
    (キッチン・UB・洗面化粧台・トイレ)
    住宅設備4点交換<br />(キッチン・UB・洗面化粧台・トイレ)
  • 全建具交換
    全建具交換
  • 突き板仕上げ
    フローリング
    突き板仕上げ<br />フローリング
  • 照明器具
    照明器具
  • 造作キッチン
    カウンター
    造作キッチン<br />カウンター
  • 造作洗面化粧台
    造作洗面化粧台

LDKリフォーム
空間テイストイメージ

ホーミックリビングでは、お客様に空間の雰囲気を分かりやすくお伝えするために、基本となる6つのデザインテイストをご用意しました。
お客様の本当に望む雰囲気、ライフスタイルや趣味をしっかりヒアリングし、6つのテイストを組み合わせることにより、様々な雰囲気をつくりあげます。

  • 和モダン

    和モダン

  • ナチュラル

    ナチュラル

  • 北欧

    北欧

  • ホテルライク

    ホテルライク

  • シック

    シック

  • 古民家

    古民家

リフォームの専門家に相談したい
デザインリフォームを体感 来場予約
リフォームの専門家に相談したい
HPに掲載していない情報満載 見積依頼